为什么日本富人住公寓穷人住别墅,日本富人住宅设计

之前看到过类似“在日本穷人才住别墅”的文章和话题,着实很让人惊讶,毕竟在国内别墅没有点家底的一般人可住不起。

但后来了解到,这说的其实是日式的“一户建”,和别墅还是存在一定差距的,今天我们就来聊聊这些差别以及一些可以借鉴学习的设计。

文末附 《住宅设计终极解剖书 日本建筑师的居住智慧》
01
一户建VS别墅
其实一户建和别墅差别还是较大的,一户建主要是满足家庭基本生活需要的住宅,属于刚需的房子,面积一般不大;而虽然说也有面积不大的别墅,但一般别墅面积也普遍都在200㎡左右或以上,并不是刚需,是改善型住宅,在日本其实同样也是有钱人才住得起真正的别墅。


▲ 一户建




▲ 别墅
很多一户建都在都市里,就导致有些区域密度较高,也有所谓的“握手楼”存在,大部分建筑还都是用木结构建造的。而对于别墅来说,不管是独栋还是联排、双拼,密度都不会太大。


▲ 密度较高


▲ 别墅区密度都不会太高
由于受到一户建面积的限制,所以在设计时更看重房屋内部的结构、更关心空间的利用率是否够高,在有限的空间中,去满足各种功能需求。对于改善型住宅的别墅来说,除了基本生活的功能区以外,还可以有一些休闲等满足精神需求的辅助空间。

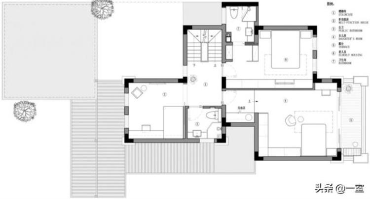
▲ 某日式一户建平面




▲ 国内某别墅平面图
所以在装修风格上,日式一户建室内多可能是以精致实用、简约的风格,而别墅的装修发挥的余地则更大,无论是豪华还是简约,都能hold住。


日式一户建,因密度高、面积小等原因,经常会有天窗的设计,增加采光,也给空间带来各种光影变化。对于咱们国内的别墅来说,天窗还是比较少见的。



02
这些设计可以借鉴
虽然一户建大都属于刚需性住宅,但在设计上也有很多值得借鉴的地方。比如一户建的厨房大都是开敞式,一般与餐厅组合在一起。而在国内,厨房多是封闭式的,做饭仿佛成了一个人的事,缺少互动,在设计时可以考虑开放、半开放厨房或者岛台,增加互动性。





▲ 这种封闭、开放可以随意切换的设计,很适合中式厨房




舞台式的设计在室内设计时也可以应用起来,利用高低差,丰富空间,也变相创造出视觉焦点,打造生活中的戏剧性。


▲ 李玮珉白鹭郡西 餐厅区域被抬高,空间独立且具仪式感


一户建因面积小,必须提高空间的利用率。在我们的小户型的设计中,也可以去尽量利用纵向空间或做可变化式设计,一个空间满足多种功能。

▲ 可变式设计
日式一户建的天窗,不仅有实际的作用,比如增加光线等,还可以是取景窗。在我们的设计时,如果不能去打造一个天窗,将窗户做为取景器也是非常不错的做法,不用室内装饰,让户外风景成为空间最美的画卷和视觉焦点。



不同国家的建筑或室内设计都有其特点,寻找到合适的地方,我们可以加以学习和借鉴。这里小编为你准备了《住宅设计终极解剖书 日本建筑师的居住智慧》,一起来看看从建筑大师的角度,如何设计让室内更美观更舒适。
《住宅设计终极解剖书》
日本建筑师的居住智慧,从动线、手法、室内外空间、空间元素、细节设计等方面,解构住宅设计
部分内容展示





























▲以上仅为部分展示
【免费领取】私信回复“005”
版权声明:我们尊重原创。文字美图素材,版权属于原作者。部分文章推送时因种种原因未能与原作者联系上,若涉及版权问题,敬请原作者联系我们,立即处理。

为什么日本穷人住独栋,有钱人住公寓?
说到房子,可能每个人都有个愿望,“住洋房,养洋狗”,这是我们一般人对于有钱人生活的基本向往。如果可以住独栋,就像当我们说的别墅,有自己的花园,私密性更好,而且别墅本身就价值不菲,而且装修费用更是一笔不少的开支,这是有钱人才有的,一般人都是攒钱买的公寓的。而在日本一般都是穷人住独栋,有钱人才住公寓。
第一,土地制度的不同。
中国对土地管理的是国家所有,个人只有使用权,没有所有权。开发商都是在政府竞投土地,当然盖别墅、独栋,比普通住房、公寓土地成本更高,自然独栋的房子更贵。而日本就不一样,日本的土地是私有化的,土地可以继承或是直接购买,个人如果在自家的土地上,盖一个独栋的当然比盖一栋公寓简单,更符合实际需求。
第二,公寓的高额管理费。
日本的公寓管理,是非常严格的,特别是一些高档小区的物业管理,日本的有钱人,大可以花一笔钱支付与物业管理,享受更好的服务。一般人是不可能随意进出公寓,所以私密性和安全性更高。相对而言,住在自己自建或购买的独栋中,完全不需要物业管理费,对于一般家庭来说,也是减少了一笔不少的费用。
第三,交通生活方便。
日本一般说,公寓基本上都建在市中心地带,所以周边基础设备和交通,都比较完善,方便。而一般的独栋都在建在郊区,上下班,生活都不适合方便,经济条件较差的话,只能以时间换取相对划算的独栋生活。
当然,“日本穷人住独栋,有钱人住公寓”,这也不是绝对的,很多明星名人或是企业家、政治家,也是住的独栋。而对于一些穷人也会注意些廉价公寓或是廉价出租屋,甚至有些人只能流落街头,无家可归。

为什么日本的有钱人住公寓,而穷人都去住别墅呢?
现在许多城市都是建立起来了高楼大厦,如今的经济也是越来越发达,许多人都买起了房,在我们中国人眼里有钱人都是直接买独栋的房子,因为独栋面积大,而且房价也高,然而普通人住的都是公寓式的房子,不过在日本却跟我们不一样,他们都是有钱人住公寓,普通人却住别墅,这究竟是为什么呢?
其实在日本他们的别墅称为一户建,跟我们的别墅是不一样的,在我们中国很多人都知道,别墅的价格比公寓的还要贵,因为在中国土地都是归国家所有,如果在土地上建造别墅所有在成本会比较高,如果是建造公寓那么可以建造很多间,这样成本就能赚回来。
但在日本却不是这样子,而是在日本的土地是私有的,只要你在日本购买了房子,那么这房子的地皮就是你的,你想怎么建都可以的,所有日本很多普通人都会选择购买一户建,虽然一户建好处比较多,但是地方会比较远,离市中心是有一段距离的,然而公寓却是建立在市中心的地方。
但不管是公寓还是一户建,在日本也是要根据它们的环境来定价的,然而一户建位置大部分都在郊区,不像在市中心的公寓好,房子是新的,就连设备也是非常具备,而且在安全方面都会比一户建的好,所以在日本有钱人都是喜欢住在公寓的。
不管怎么说,其实这样子也是跟我们中国没什么区别,唯一的区别就是地皮跟房子,我们中国的普通人住的都是比较小的,而且在城市中想要买一块地皮也是非常困难的,所以大部分人都只能买房住,所以说在日本能买地皮自己建也是比较好的,不知道大家对这件事怎么看?可以评论说说看。
大家都在看
-
2月9日离谱奇闻合集!件件笑到捶桌,第3个太绝了 AI把警官写成青蛙、年会特等奖拆出瓷砖、小狗记仇拖三轮车报复…今日奇葩事扎堆,每一个都刷新认知!▫️美国警局AI翻车,执勤警官竟被写成“青蛙在现场监督”,硬核乌龙笑翻全网▫️广东小伙年会抽中特等奖手机,拆 ... 奇闻怪事02-10
-
中国近代5桩野史奇闻:大师搓麻、太监掌权、民间神医断头还生 提到中国近代史,多数人想到的是鸦片战争、辛亥革命、军阀混战的宏大叙事。但在正史的字缝里,藏着太多让人拍案叫绝的野史奇闻——治学严谨的大师沉迷搓麻,权倾朝野的太监暗藏智慧,民间裁缝能续断头性命。这些不为 ... 奇闻怪事02-10
-
杭州发生过哪些奇闻异事? 探秘杭州:那些令人惊叹的奇闻异事杭州,这座充满诗意与历史韵味的城市,宛如一幅徐徐展开的画卷,不仅有西湖的湖光山色,更藏着许多鲜为人知的奇闻异事。今天,就让我们一起揭开杭州神秘的面纱,探寻那些令人啧啧称 ... 奇闻怪事02-07
-
野史揭秘:那些被正史藏起来的奇闻怪事,古人到底有多“疯狂”? 大家好,欢迎来到今天的“古代野史大揭秘”!你以为史书都是严肃正经、一本正经写历史?错!其实,正史就像一本“教科书”,而野史,则像是一本“八卦杂志”,藏着许多正史不敢提的奇闻趣事。今天我们就来扒一扒那些 ... 奇闻怪事01-28
-
~奇闻趣事 奇闻趣事:那些令人惊叹的奇妙瞬间世界之大,无奇不有。在这个广袤的地球上,每天都在发生着各种令人匪夷所思的奇闻趣事。有些事情看似不可思议,却又真实发生,让人不得不感叹世界的神奇与奇妙。今天,就让我们一起 ... 奇闻怪事01-27
-
“曹禺真会‘读书’假洗澡?古代名人奇闻趣事大揭秘!” 大家好!今天给大家带来一段鲜为人知的古代趣闻,主角可是中国现代戏剧大师曹禺(原名万家宝)。不过,这次他的“传奇”故事可不是舞台上的表演,而是一段“假洗澡读书”的趣味轶事!听起来是不是像古代版的“偷懒秘 ... 奇闻怪事01-27
-
奇闻怪事:广德某妇得孕产蛇! 奇闻怪事:广德某妇得孕产蛇!作者:徐厚冰民国三十二年(1933),安徽省广德县(今广德市)南乡小刘村发生一件奇闻怪事——该村汪小云年过六旬,膝下无子。去年(1932)三月,其妻腹渐隆起,夫妇以为老来得孕,欣喜 ... 奇闻怪事01-25
-
历史上的奇闻异事:那些至今未解的神秘谜团,你知道几个? 嘿,朋友们!今天咱们不聊那些枯燥的历史教科书,而是来点“硬核”的——那些让人百思不得其解的历史谜题。你有没有想过,古人留下的那些神秘遗迹,到底隐藏着什么秘密?那些奇异事件,到底是巧合,还是另有隐情?今 ... 奇闻怪事01-22
-
全球奇闻趣事大集合:冷门知识一览 赃款不能直接花,突然买豪车别墅会引税务局、警察甚至邻居怀疑,必须洗钱把非法收入变合法。南边邻国不丹至今挂着大清黄龙旗,历史上是清朝藩属国,深受中华文化影响,据说输入法打不丹会出现国旗。长城不是秦始皇一 ... 奇闻怪事01-21
-
野史大揭秘:那些被正史藏起来的奇闻趣事,竟然比正史还精彩! 大家好,我是你们的古史野史探秘达人!今天带大家走进一个神秘又趣味横生的世界——野史的天地。你以为史书只讲正经事?错!其实,野史可是藏着无数惊天秘闻、趣味八卦的“宝藏库”,比正史还要精彩绝伦,让你大开眼 ... 奇闻怪事01-14
相关文章
- 野史大揭秘:那些被正史藏起来的奇闻趣事,竟然比正史还精彩!
- 令人瞠目结舌!历史上最荒诞却真实的五件奇闻
- 你听过世界上有哪些奇闻异事吗
- 古代奇闻小故事五则
- 古代奇闻小故事四则
- 你绝对想不到!历史上那些离奇又趣味的奇闻异事,笑到肚子疼!
- 揭秘古代那些被历史遗忘的荒唐秘闻,笑到肚子疼的古代奇闻趣事
- 世界之大无奇不有,19张照片带你看不一样的奇闻趣事
- 奇闻,你听到过吗?
- 揭秘鲜为人知的历史秘闻:那些令人惊叹的奇闻趣事,你知道吗?
- 国画秘史:那些令人咋舌的奇闻巧合
- 世界之大无奇不有,十九张照片带你看不一样的奇闻趣事
- 世界之大无奇不有,18张照片带你看不一样的奇闻趣事
- 世界之大无奇不有?20张照片带你看不一样的奇闻趣事
- 世界之大无奇,16张照片带你看不一样的奇闻趣事
- 网上疯传的“乡村奇闻”,每一件都炸裂你的三观
- 世界之大无奇不有,20张照片带你看不一样的奇闻趣事
- 以下是一些最近发生的奇闻趣事:
- 以下是一些最近的奇闻趣事:
- 关于汽车的奇闻异事
热门阅读
-
日本gv公司盘点,高质量钙片清秀型美攻美受 07-11
-
盘点中国十大龙现身事件,真龙竟然屡次现身震惊众人 06-27
-
戴旭说出马航失联真相,因为害怕承担责任迟迟不公开 07-05
